Save
Ask
Tour
Hide
$299,900
New Listing
940 LEGACY COVE NSPRINGVILLE, AL 35146
For Sale|Single Family Residence|Active
3
Beds
2
Total Baths
2
Full Baths
1,588
SqFt
$189
/SqFt
2025
Built
Subdivision:
LEGACY SPRINGS
County:
St Clair
Listing courtesy of Keller Williams
Call Now: 205-447-2456
Is this the listing for you? We can help make it yours.
205-447-2456



Save
Ask
Tour
Hide
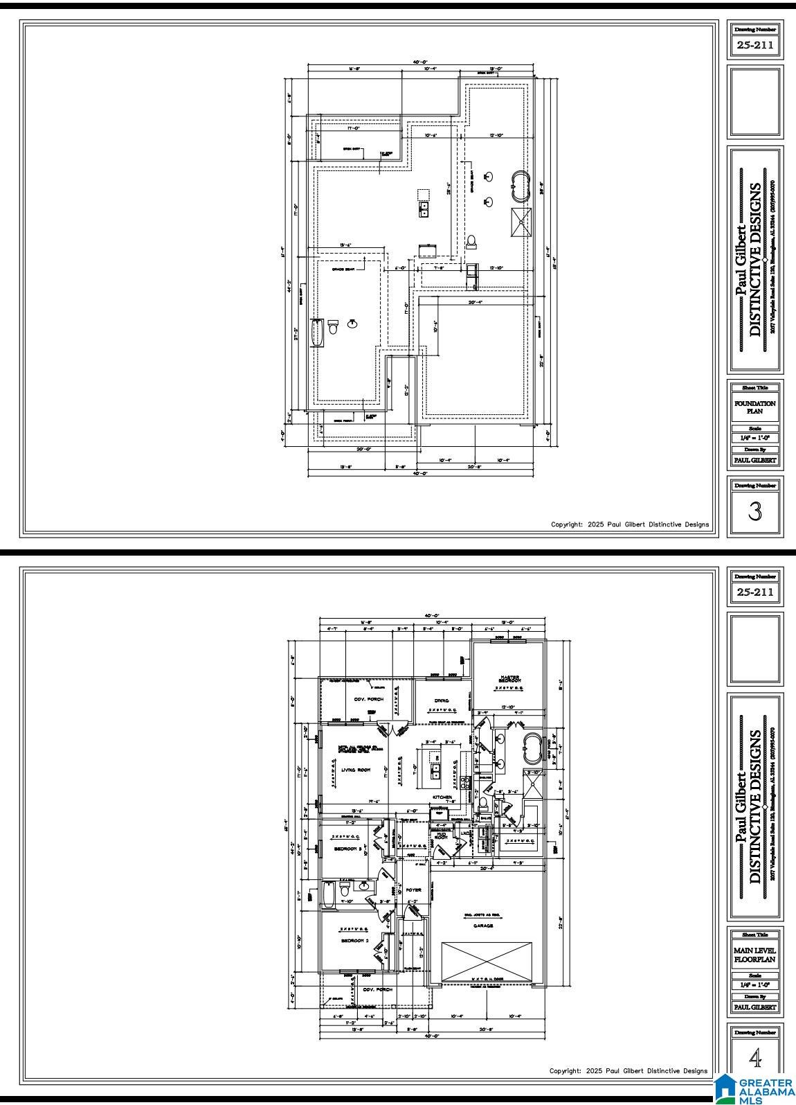
PRESALE / PROPOSED CONSTRUCTION in SPRINGVILLE. Peaceful, flat cul de sac street with only a few homes in the desirable, original lower section of Legacy Springs. Springville schools. Minutes from I-59 and downtown Springville. Plans are for a modern, one level garden home with brick front and brick skirt surround. 3 bedrooms, 2 baths, laundry/mud room, open living, dining, kitchen concept. Covered back patio. No neighbors or development behind this build or to the right. Schedule a meeting with listing agent and builder to discuss plan and to get started. Plenty of standard options and upgrades available to make it your own.
Save
Ask
Tour
Hide
Listing Snapshot
Price
$299,900
Days On Site
0 Days
Bedrooms
3
Inside Area (SqFt)
1,588 sqft
Total Baths
2
Full Baths
2
Partial Baths
N/A
Lot Size
0.19 Acres
Year Built
2025
MLS® Number
21434397
Status
Active
Property Tax
N/A
HOA/Condo/Coop Fees
$33.33 monthly
Sq Ft Source
Plans
Friends & Family
Recent Activity
3 hours ago | Listing updated with changes from the MLS® | |
5 hours ago | Listing first seen on site |
General Features
Acres
0.19
Attached Garage
Yes
Foundation
Slab
Garage
Yes
Garage Spaces
2
Number Of Stories
1
Parking
Attached
Property Sub Type
Single Family Residence
Style
1-Story
Utilities
Underground UtilitiesSewer Connected
Water Source
Public
Interior Features
Appliances
DishwasherElectric CooktopMicrowaveElectric Water HeaterDryer
Cooling
Central Air
Flooring
Laminate
Heating
CentralElectric
Interior
Walk-In Closet(s)High CeilingsRecessed LightingStone Counters
Laundry Features
Laundry RoomMain LevelElectric Dryer HookupWasher Hookup
Save
Ask
Tour
Hide
Exterior Features
Construction Details
Vinyl SidingBrick
Lot Features
Cul-De-Sac
Patio And Porch
CoveredPatioPorch
Pool Features
Outdoor PoolIn Ground
Waterfront Features
Pond
Community Features
Association Dues
400
Community Features
PoolClubhouseFishingSidewalksStreet Lights
HOA Fee Frequency
Annually
MLS Area
Argo, Springville, Steele
Roads
Paved
Schools
School District
Unknown
Elementary School
SPRINGVILLE
Middle School
SPRINGVILLE
High School
SPRINGVILLE
Listing courtesy of Keller Williams
IDX information is provided exclusively for consumers’ personal, non-commercial use, and may not be used for any purpose other than to identify prospective properties consumers may be interested in purchasing. The content of this site is not guaranteed accurate by the MLS. Listing source GALMLS.
Copyright 2025 Greater Alabama MLS, Inc.
IDX information is provided exclusively for consumers’ personal, non-commercial use, and may not be used for any purpose other than to identify prospective properties consumers may be interested in purchasing. The content of this site is not guaranteed accurate by the MLS. Listing source GALMLS.
Copyright 2025 Greater Alabama MLS, Inc.
Neighborhood & Commute
Source: Walkscore
Disclosure: Community information and market data powered by Constellation Data Labs. Information is deemed reliable but not guaranteed.
Save
Ask
Tour
Hide
Did you know? You can invite friends and family to your search. They can join your search, rate and discuss listings with you.