000537 PRESERVE WAYHOOVER, AL 35226




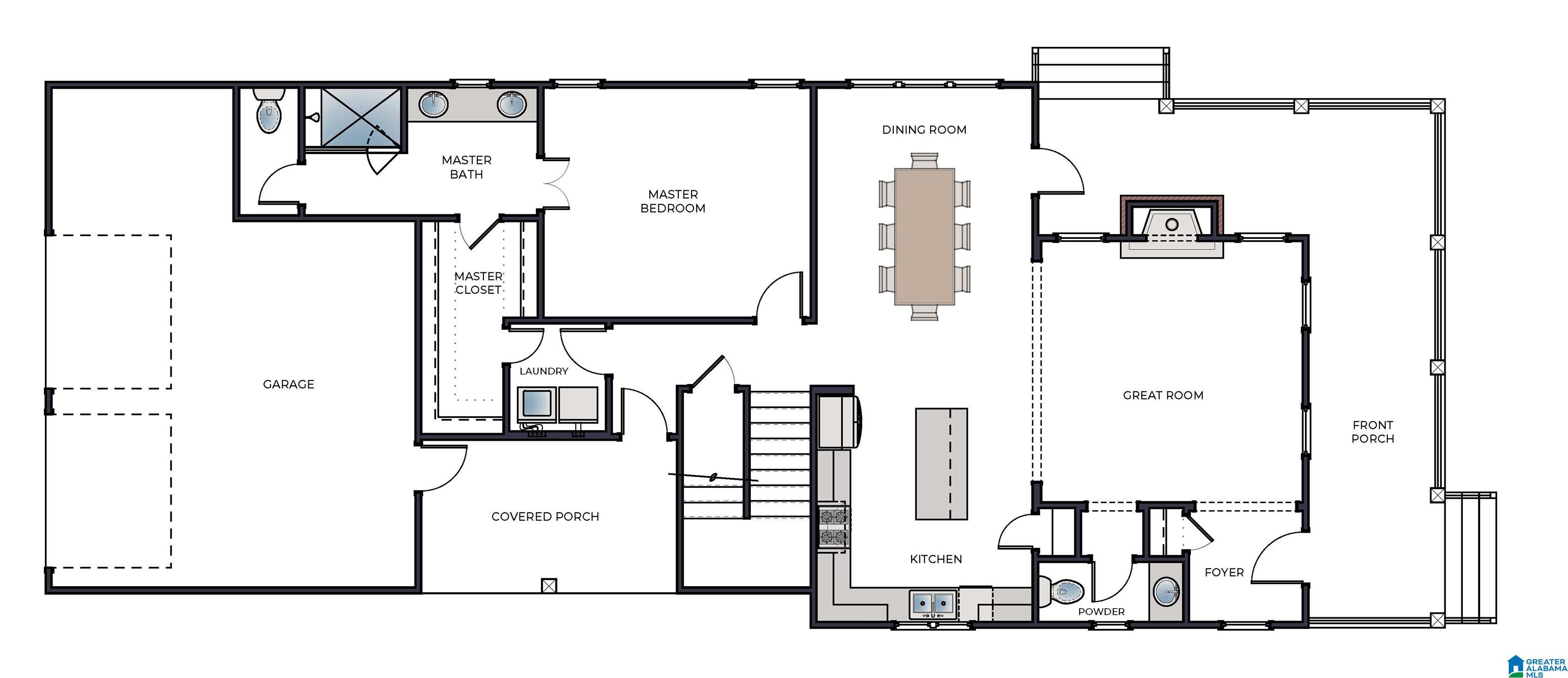
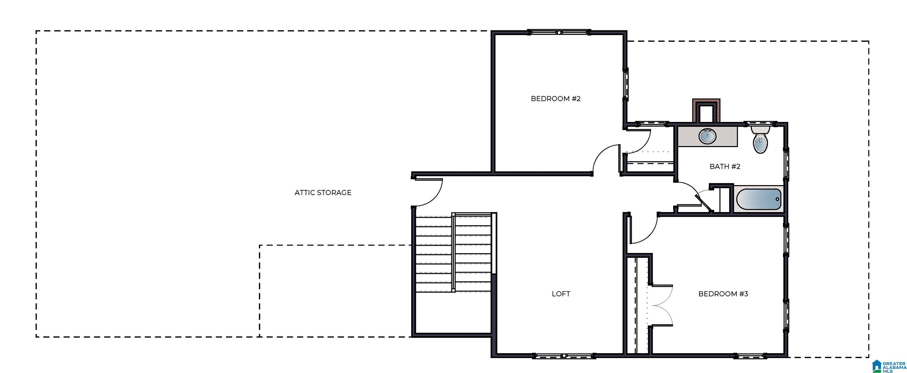
FOR A LIMITED TIME, ENJOY A 1% BUYER INCENTIVE! Contact our Sales Team for more information. Select your interior colors & finishes! The Fulton features a wrap around covered front porch, 3 bedrooms, 2 & a half bathrooms & spans across 2466 square feet. The foyer leads to the great room with a fireplace. As you make your way through the home, you will enter into the open concept dining room & kitchen area. The primary suite is located on the back of the home & features a private bathroom with a walk-in tile shower, double vanities & a walk-in closet with access to the laundry room. The covered side porch overlooks a private courtyard. 2-car main level garage. The second level of the home features two additional bedrooms, a full bathroom and loft area. The Preserve is a walkable community featuring 5 neighborhood parks, restaurants, drug store, salon & the 350-acre Moss Rock Preserve which has 10 miles of hiking trails, water falls & boulder fields.
| 13 hours ago | Listing updated with changes from the MLS® | |
| 18 hours ago | Listing first seen on site |
IDX information is provided exclusively for consumers’ personal, non-commercial use, and may not be used for any purpose other than to identify prospective properties consumers may be interested in purchasing. The content of this site is not guaranteed accurate by the MLS. Listing source GALMLS.
Copyright 2025 Greater Alabama MLS, Inc.

Did you know? You can invite friends and family to your search. They can join your search, rate and discuss listings with you.