Save
Ask
Tour
Hide
$325,000
1 Day On Site
1616 16TH AVENUE S 0BIRMINGHAM, AL 35205
For Sale|Land|Active
County:
Jefferson
Listing courtesy of Keller Williams Homewood
Call Now: 205-447-2456
Is this the listing for you? We can help make it yours.
205-447-2456



Save
Ask
Tour
Hide
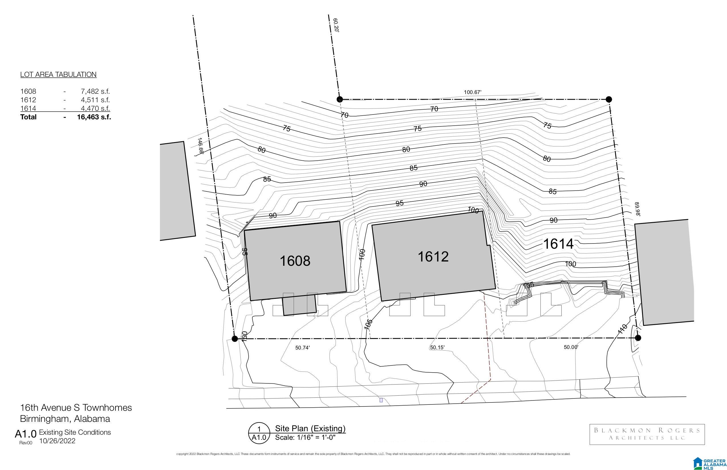
THREE LOTS FOR SALE under Vulcan. Three prime Southside lots are being sold together: 1610, 1612, and 1616 16th Ave S. Included in the sale are the custom architectural plans from the renowned Blackmon Rogers Architects, showcasing six stunning LUXURY TOWNHOMES custom designed for THESE SPECIFIC LOTS. Whether you bring your own plans or builder - or collaborate directly with the SELLER FOR BUILDING - this property is primed for a high-return development opportunity. Nestled just below Vulcan, the lots boast unparalleled panoramic views of downtown Birmingham that buyers and renters dream of, as well as convenience to Downtown and the city’s best amenities. Don't miss this rare chance to secure a coveted piece of Birmingham’s skyline!
Save
Ask
Tour
Hide
Listing Snapshot
Price
$325,000
Days On Site
1 Day
Bedrooms
N/A
Inside Area (SqFt)
N/A
Total Baths
N/A
Full Baths
N/A
Partial Baths
N/A
Lot Size
0.317 Acres
Year Built
N/A
MLS® Number
21443354
Status
Active
Property Tax
N/A
HOA/Condo/Coop Fees
N/A
Sq Ft Source
N/A
Friends & Family
Recent Activity
| 9 hours ago | Listing updated with changes from the MLS® | |
| yesterday | Listing first seen on site |
General Features
Acres
0.317
Utilities
Cable AvailableElectricity AvailableNatural Gas AvailableWater Available
Water Source
Public
Zoning
R4A
Save
Ask
Tour
Hide
Exterior Features
Road Frontage
City Street
View
City
Waterview
City
Community Features
Community Features
None
MLS Area
Downtown Birmingham, Southside
Schools
School District
Unknown
Elementary School
GLEN IRIS
Middle School
ARRINGTON
High School
CARVER, G W
Listing courtesy of Keller Williams Homewood
IDX information is provided exclusively for consumers’ personal, non-commercial use, and may not be used for any purpose other than to identify prospective properties consumers may be interested in purchasing. The content of this site is not guaranteed accurate by the MLS. Listing source GALMLS.
Copyright 2026 Greater Alabama MLS, Inc.
IDX information is provided exclusively for consumers’ personal, non-commercial use, and may not be used for any purpose other than to identify prospective properties consumers may be interested in purchasing. The content of this site is not guaranteed accurate by the MLS. Listing source GALMLS.
Copyright 2026 Greater Alabama MLS, Inc.
Neighborhood & Commute
Source: Walkscore
Disclosure: Community information and market data powered by Constellation Data Labs. Information is deemed reliable but not guaranteed.
Save
Ask
Tour
Hide

Did you know? You can invite friends and family to your search. They can join your search, rate and discuss listings with you.